Поблизу Сільмашу зведуть багатоповерховий житловий комплекс з дитячим садочком на 50 місць

четвер, 15 січня 2026 р. о 12:38

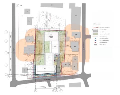
На вул. Сулими, 32 збудують новий багатоповерховий житловий комплекс з підземним паркінгом та дитячим садочком.

Сьогодні, 15 січня, на засіданні виконавчого комітету Львівської міської ради представили містобудівні умови та обмеження, які видав головний архітектор Львова.

Згідно з ними, на вул. Сулими, 32 у Франківському районі Львова, неподалік стадіону "Сільмаш" планується звести офісно-житловий комплекс з вбудованим дитячим навчальним закладом та підземним паркінгом.

Як пояснив головний архітектор міста Антон Коломєйцев, йдеться про будівництво 7-поверхового житлового будинку з підземним паркінгом.

Також забудовники планують виділити приміщення площею 450 м² у багатоповерхівці для облаштування дитячого садочка на 50 місць.

"Свого часу тут розроблявся детальний план території. Додатково підприємці збільшили території забудови внаслідок ще одного невеликого будинку й зараз пропонують комплексне рішення з дитячим садком на 500 м²" – зазначив Коломєйцев.

Нагадаємо, детальний план територій у районі вул. І. Сулими, вул. Городоцької, вул. Окружної та вул. Кондукторської, передбачає забудову ділянки площею 4,4 га на вул. Сулими, 32, територію 1-2-поверхового будинку, квартири якого належать ОСББ "Ластівка-8".

7-поверховий житловий комплекс вміщатиме до 130 мешканців, а  підземний паркінг матиме від 24 до 48 машиномісць.

Варіанти - онлайн газета новин Львова. Інший погляд на львівські новини та новини львівщини. Завжди свіжі новини про Львів, про львів'ян і не тільки. Тут новини у Львові оновлюються постійно.

Варіанти © 2012-2026