У Львові зведуть нову торгово-адміністративну будівлю з підземним паркінгом

пʼятниця, 28 липня 2023 р. о 12:48
У Львові зведуть нову торгово-адміністративну будівлю з підземним паркінгом
city-adm.lviv.ua
візуалізація забудови на вул. Пирогівці

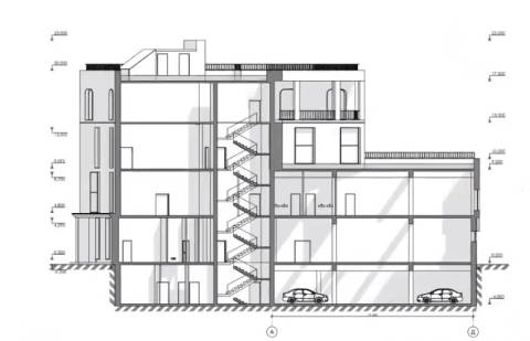
Виконком дозволив збудувати на вул. Пирогівці торгово-адміністративну будівлю на 4 поверхи з підземним паркінгом.

Сьогодні, 28 липня, виконавчий комітет Львівської міської ради затвердив містобудівні умови на нове будівництво Михайлом Семчуком торгово-адміністративної будівлі на вул. Пирогівці, 3 у Львові.

Нову торгово-адміністративну будівлю збудують на двох земельних ділянках площею 0,1 га та 0,265 га, що передбачені для будівництва та обслуговування будівель торгівлі.

Згідно із містобудівною документацією, максимальна висота будівлі становитиме 23,5 м. Новобудова матиме 4 надземні поверхи та один підземний поверх, де облаштують місця для паркування. Максимально допустимий відсоток забудови земельної ділянки – 28%.

Функціональне призначення земельних ділянок, на яких зведуть новобудову, – зона Г-6 – зона об’єктів торгівлі та зона ТР-2 – зона транспортної інфраструктури відповідно до детального плану території у межах вул. Зеленої, вул. Пасічної, вул. Пирогівки.

За даними аналітичної системи YouControl, львів'янин Михайло Семчук зареєстрований як фізична особа-підприємець з 2012 року, займається технічним обслуговування та ремонтом автотранспортних засобів. Він є власником двох львівських фірм з ремонту й обслуговування авто – ТОВ "Західноукраїнська компанія "Гермес" та ТОВ "Захід авто сервіс".

Варіанти - онлайн газета новин Львова. Інший погляд на львівські новини та новини львівщини. Завжди свіжі новини про Львів, про львів'ян і не тільки. Тут новини у Львові оновлюються постійно.

Варіанти © 2012-2026