Будинок на вулиці Ковжуна переобладнають під магазин промтоварів

пʼятниця, 12 березня 2021 р. о 15:40
Будинок на вулиці Ковжуна переобладнають під магазин промтоварів
google.com.ua
вул. Ковжуна, 5.

Виконком Львівської міської ради дозволив облаштувати магазин промтоварів у будинку на вул. Ковжуна, 5.

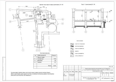
Сьогодні, 12 березня, виконавчий комітет Львівської міської ради затвердив містобудівні умови на реконструкцію Людмилою Гордієнко приміщень квартири №1 під магазин промислових товарів з відновленням дверного прорізу на місці віконного отвору на вул. П. Ковжуна, 5 у Львові.

Квартира, яку переобладнають під магазин, розміщена на першому поверсі 3-поверхового будинку, який знаходиться у межах історичного ареалу міста у Галицькому районі.

Як заявив головний архітектор міста Антон Коломєйцев, управління історичного середовища Львівської міської ради надало дозвіл на перепланування квартири та пробиття дверей у стіні фасаду будинку. Він пояснив, що раніше на цьому місці були двері, проте забудовники мають врахувати вимоги збереження традиційного історичного середовища міста.

Згідно із містобудівною документацією, у приміщенні замість житлової кімнати і кухні облаштують один торговий зал, вбиральню та паливну.

За даними аналітичної системи YouControl, Людмила Гордієнко з 1997 року єфізичною особою-підприємцем, займається роздрібною торгівлею взуттям і шкіряними виробами.

Нагадаємо, у лютому цього року виконком дозволив вибити двері на місці вікна у будинку на вул. Джерельній, 39 та облаштувати там магазин.

Варіанти - онлайн газета новин Львова. Інший погляд на львівські новини та новини львівщини. Завжди свіжі новини про Львів, про львів'ян і не тільки. Тут новини у Львові оновлюються постійно.

Варіанти © 2012-2026