У Львові на стадіоні Юність вирішили облаштувати укриття

вівторок, 2 травня 2023 р. о 14:13
У Львові на стадіоні Юність вирішили облаштувати укриття
стадіон "Юність"

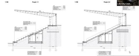
Виконком дозволив облаштувати укриття на стадіоні "Юність" у парку культури і відпочинку ім. Б. Хмельницького.

У п'ятницю, 28 квітня, виконавчий комітет Львівської міської ради вніс зміни до свого від 2018 року про реконструкцію стадіону "Юність", що на вул. Болгарській, 4 у Парку культури і відпочинку ім. Б. Хмельницького.

Згідно зі змінами, на стадіоні мають влаштувати споруду подвійного призначення – укриття.

"Затвердити містобудівні умови та обмеження для проєктування об’єкта будівництва на реконструкцію ЛКП "Львівський центральний парк культури і відпочинку ім. Б. Хмельницького" будівель спортивного комплексу "Юність" на вул. Болгарській, 4 з влаштуванням споруди подвійного призначення – укриття" – йдеться у рішенні виконкому.

Як заявив головний архітектор Львова Антон Коломєйцев, укриття планують облаштувати під трибунами, які також зможуть використовувати всі відвідувачі парку. Проєкт реконструкції стадіону змінюють для того, щоб тут можна було спокійно проводити змагання.

Зазначимо, у березні 2020 року Парк культури замовив реконструкцію спорткомплексу "Юність" за 23 млн грн у ГО "Союз осіб з інвалідністю України". А у травні того ж року на стадіоні розпочалась реконструкція другої частини трибун.

Масштабна реконструкція стадіону розпочалась у 2017 році. З цього часу тут облаштували праву трибуну і комплекс з роздягалками. Над новими глядацькими трибунами споруджено прозорий навісний дах. Станом на 2017 рік у мерії зазначали, що загальна вартість робіт, які вже тривають, становить 18 700 344,82 грн.

Варіанти - онлайн газета новин Львова. Інший погляд на львівські новини та новини львівщини. Завжди свіжі новини про Львів, про львів'ян і не тільки. Тут новини у Львові оновлюються постійно.

Варіанти © 2012-2026