Антонов збудує нове чудо світу на квітучих смітниках

пʼятниця, 7 лютого 2020 р. о 12:04
Антонов збудує нове чудо світу на квітучих смітниках
Віталій Антонов

У Львові проведуть міжнародний архітектурний конкурс на будівництво готелю фірмою Віталія Антонова на пл. А. Міцкевича, 9.

Сьогодні, 7 лютого, виконавчий комітет Львівської міської ради затвердив містобудівні умови на будівництво ТзОВ "Центр розвитку нерухомості" готелю з адміністративно-торговими приміщеннями, підземним паркінгом та даховою котельнею на пл. А. Міцкевича, 9 у м. Львові.

Під час обговорення керівник юридичного управління Гелена Пайонкевич зазначила, що суди навколо цієї ділянки тривають більше 15 років. Однак міський голова Львова наголосив, що щодо цієї ділянки проведуть міжнародний архітектурний конкурс.

"Я би дуже хотів, щоб ця пляма, яка там зараз є, де стоять смітники, була забудована. Я знаю що там були зауваження з боку історичного середовища, тому я прошу, щоб ці зауваження ви фахово в рамках архітектурного середовища проаналізували і дали відповідні рекомендації. Я хочу, щоб міжнародний архітектурний конкурс враховував всі ці зауваження і там з'явилася будівля, яка буде пам'яткою архітектури 21 століття" – заявив Андрій Садовий.

Крім цього, Андрій Садовий доручив заступнику міського голови Львова з містобудування Любомиру Зубачу створити робочу групу до якої повинні увійти архітектури.

Згідно з проектом рішення готель мають збудувати на земельній ділянці площею 0,1090 га, яка є у приватній власністі і призначена для будівництва та обслуговування будівель торгівлі.

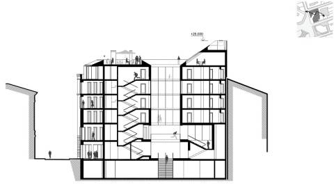
Як встановили у міськраді висота будинку не повинна перевищувати 25 метрів, тобто 7 поверхів. Згідно з візуалізацією буділя готелю повинна мати 6 поверхів та мансарду. Максимально допустимий відсоток забудови цієї земельної ділянки – 100 %.

Ділянка розташована у межах історичного ареалу міста та території, яку взяли під охорону ЮНЕСКО, відтак планування і забудова тут здійснюється лише за висновком управління охорони історичного середовища Львівської міськради.

За даними порталу YouControl, ТзОВ "Центр розвитку нерухомості" заснували у Львові в 2004 році і воно займається будівництвом житлових та нежитлових будівель. Кінцевим власником підприємства є Віталій Антонов, а у переліку засновників – компанія "Сарубас Лімітед" (Кіпр).

Розмір статутного капіталу компанії становить 6 000 000 грн.

Зазначимо, Віталій Антонов також є головою Наглядової Ради Страхової компанії "Універсальна", президентом "Універсальної інвестиційної групи" і власником ПАТ "Концерн Галнафтогаз". Він у 2019 році планує розпочати будівництво цілорічного курорту в смт. Славське. Додамо, у серпні цього року виконавчий комітет Львівської міської ради дозволив ПАТ "Концерн Галнафтогаз" збудувати АЗС "ОККО" вул. Личаківській.

Зазначимо, що будинок на Міцкевича, 9 розібрали у 1997 році, але його ще можна побачити, наприклад, у радянській стрічці На розі Арбата і вулиці Бубулінас (1972), який частково знімали у Львові.

Нагадаємо, у грудні 2018 року Львівська міськрада дозволила будівництво готелю на площі Міцкевича ТзОВ "Центр розвитку нерухомості", яке належить львівському бізнесменові Віталію Антонову.

Додамо, у червні 2019 року у Львівській міськраді погодили детальний план, який дозволяє будівництво готелей на вулиці Івана Федорова, 23 та 28, також ще один готель на площі Міцкевича, 9.

Варіанти - онлайн газета новин Львова. Інший погляд на львівські новини та новини львівщини. Завжди свіжі новини про Львів, про львів'ян і не тільки. Тут новини у Львові оновлюються постійно.

Варіанти © 2012-2026